名軒 湯本源

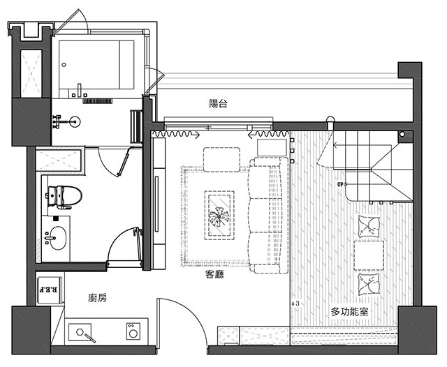
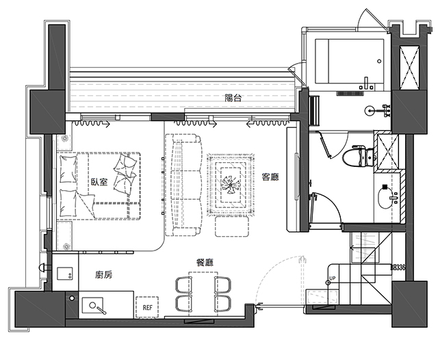
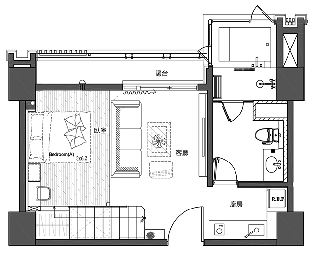
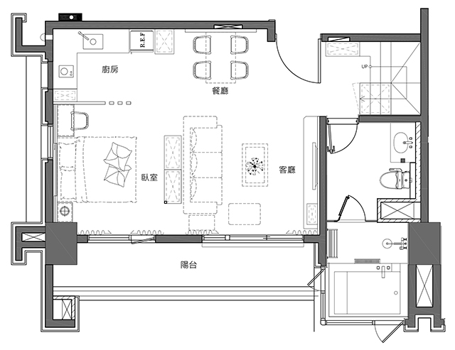
建案資料

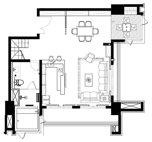
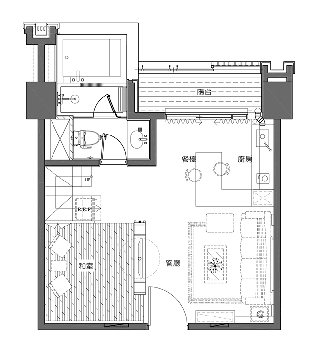
坪數:21坪
衛浴:1間
車位:119個

建案介紹

眾所期盼,暖心氛圍,4米2五星級溫泉旗艦行館『湯本源』掀起被動養生新時尚,由麗寶集團上市十大建商名軒開發,在萬坪礁溪公園第一排,長榮鳳凰酒店正對面,再現戶戶溫泉到府,碳酸氫鈉黃金美人之湯;地段萬中選一,人生夢寐以求,讓企業家與喧囂的壓力,化為山海湯園的交心!犒賞自己,感謝家人,實現人生最重要的事,能養生、保康健、擁悠閒,150米礁溪轉運站,冬日時分,遊人如織,收藏家私擁名湯,優雅絡繹不絕。